我要收藏
公共资源调用站点
文章分享
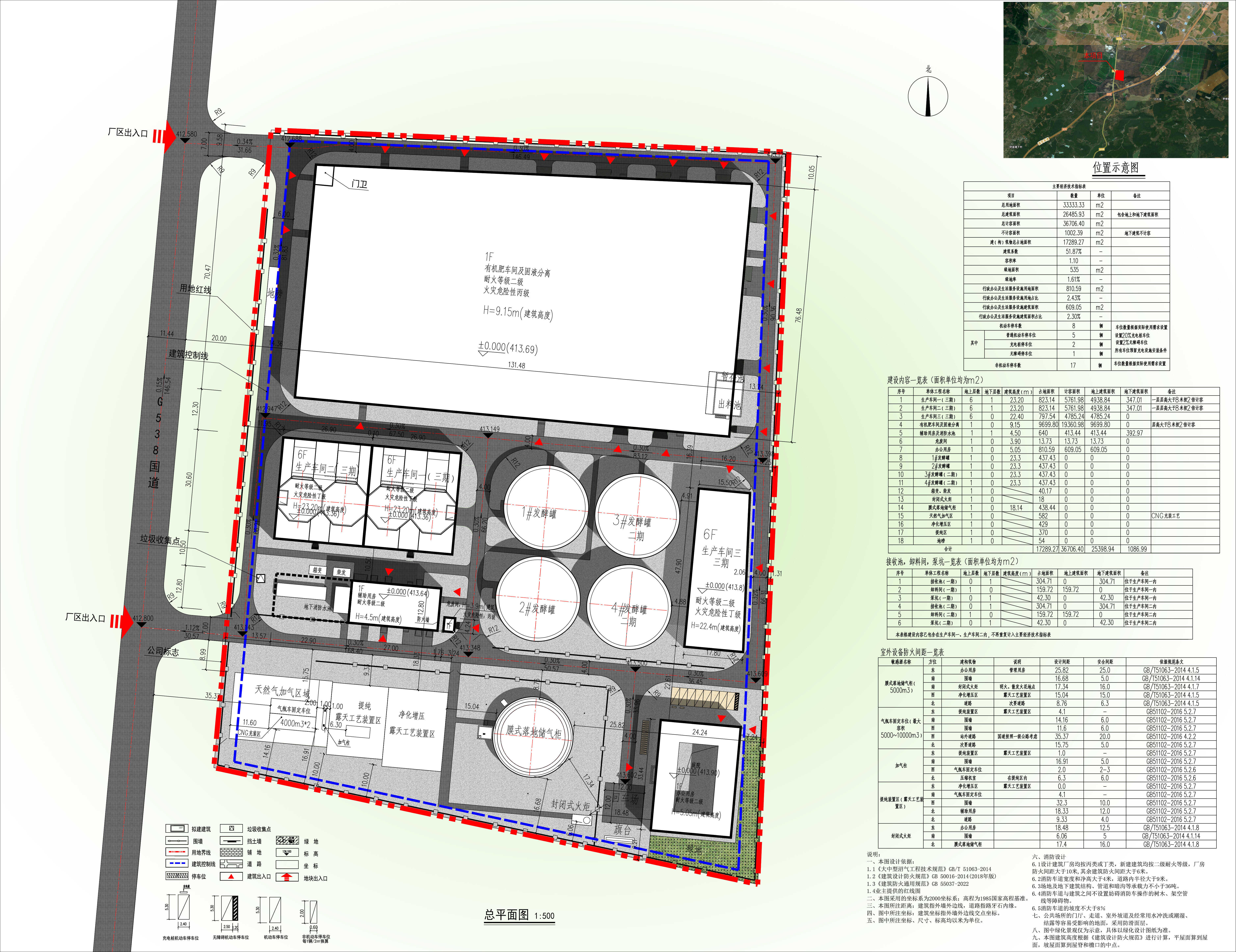
广西富川富能生物能源有限公司向我局申请批准《富川畜禽粪污资源化利用项目规划及建筑设计方案》。该项目位于富川瑶族自治县麦岭镇原麦岭部队,根据《中华人民共和国城乡规划法》等相关规定,现将该项目方案主要内容予以批前公示。
一、公示时间
2025年12月24日至2026年1月4日,共7个工作日。
二、公示地址
富川瑶族自治县自然资源局大院公示栏及富川瑶族自治县自然资源局网站(http://fuchuan.dnr.gxzf.gov.cn/ghjh/csghgs)。
三、公示内容
详见附件。
四、意见反馈方式
如有关单位或个人对该项目审批有任何意见或建议,可在公示期内将书面意见反馈至富川瑶族自治县自然资源局(地址:富川瑶族自治县富阳镇凤凰路152号,邮编:542700;电话:7888891;邮箱:fcxzrzyjghg@gxj.gxhz.gov.cn)。
附件:主要公示内容
富川瑶族自治县自然资源局
2025年12月24日
1.项目区位图:

2.彩色总平面图:

3.效果图:


文件下载:
关联文件: